贵州刺梨加工中心冷链项目
 文章出处:东星冷库 发表时间:2021-03-16 16:44 
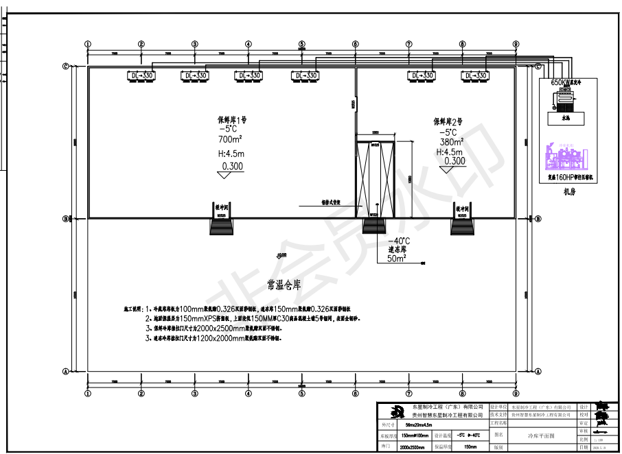
            项目简介:贵州天赐贵宝,占地面积1200平方,冷库高度4.5米,设计速冻库-35度、-18度和-5度,主要储存刺梨原果、刺梨原浆汁和刺梨饮料。
冷库设计:库板厚度为150mm和100mm聚氨酯保温板,冷库机组采用一台60P北京比泽尔螺杆机、2*40HP比泽尔半封闭活塞机和2*20HP比泽尔半封闭活塞机,300KW蒸发式冷凝器,施工工期约为50天。
	 
 
	 
 
	 
 
	 
 
	 
 
	
同类文章排行
- 冷库知识大揭秘!
- 冷库及库板的分类
- 冷库工程建造完成之后该怎么管理?
- 臭氧在冷库应用当中有哪些作用?
- 小型速冻冷库有哪些优势?
- 冷库车使用注意事项
- 冷库里面如何排水?
- 冷库类型以及设备该如何选择?
- 建造一个血液冷库需要多少钱?
- 冷库冷藏工艺





 扫一扫添加微信
 扫一扫添加微信  扫一扫关注微信公众号
 扫一扫关注微信公众号